Ruinas de Santa María de Gracia, Cazorla (Jaén)

Información general

Tipología
Arquitectura Religiosa
Provincia
Jaén
Municipio
Cazorla
Autoría

Círculo de Andrés de Vandelvira

Situación Legal
Incluido en el conjunto histórico-artístico
Cronología
1534-1590 aproximadamente. Periodo histórico: Edad Moderna
Imagen
Imagen
Fotografías
Fernando Alda Calvo (FAC) y Francisco Campos Fernández (FCF)

Descripción del bien

Los restos que se conservan nos hablan de la grandeza de un templo que se concibió en relación con la importancia de los patrocinadores que tuvo. La escasa documentación hace difícil fijar las etapas, ya que existe una diferencia de estilo entre la cabecera y el resto. Mientras que el Presbiterio parece obra de Vandelvira, la portada lateral y los pies se ajustan a las formas tardías del Quinientos.

Así lo prueban:

  • La espléndida bóveda vaída del interior de la torre, en la capilla conocida como de San Cristobalón
  • La bóveda de casetones sobre el ábside y altar mayor
  • Las dos portadas principales. La de la fachada Norte, a la que se accede por una escalinata y en la que merece destacarse el nicho de la torre con frontispicio rematado por dos altorrelieves representando a dos alegorías (la justicia y la fortaleza); y la de la fachada suroeste, con arco de medio punto y orden compuesto, junto al que aparecen dos relieves de figuras masculinas flanqueando el arco delimitado por una cornisa

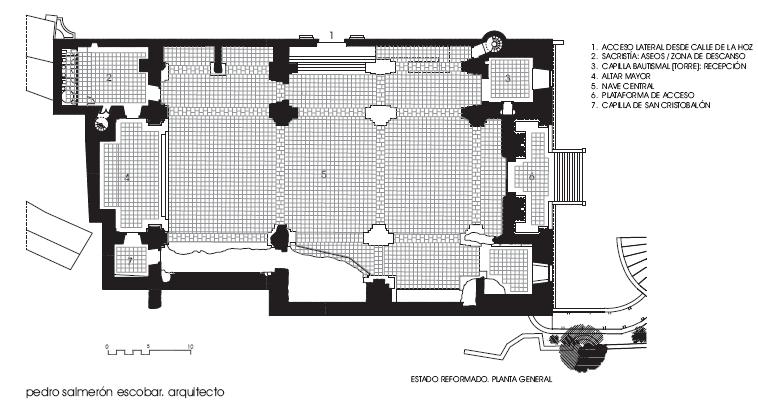
La iglesia es de una sola nave, con capillas laterales y crucero. El crucero sufre un ligero estrechamiento en el lateral SE debido a la roca sobre la que se articula y construye el templo.

Tan sólo se conservan los arranques de las semicolumnas corintias que debieron soportar la cubierta originaria.

Es muy probable que el templo no se llegase a concluir completamente y que serios daños ocasionados por los efectos catastróficos de una tormenta en 1694, agotaran las posibilidades de finalizarla. Durante la guerra de la Independencia, los daños causados por el bombardeo e incendio fueron mayores. Durante algún tiempo del siglo XX, la iglesia  ha tenido uso de auditorio.

Imagen
Imagen
Imagen

Datos históricos

  • Denominación: Ruinas de la antigua iglesia de Santa María de Gracia
  • Tipología: Arquitectura religiosa
  • Periodo histórico: Edad Moderna
  • Cronología: 1534-1590 aprox.
  • Estilo: Renacimiento
  • Círculo de Andrés de Vandelvira


La plaza de Santa María, donde se ubica la Iglesia Mayor del mismo nombre, es de forma irregular, casi un hemiciclo. Se levantó sobre el río Cerezuelo, (también conocido como Cazorla o de la Vega), por lo que previamente hubo de construirse una consistente bóveda de medio cañón, adaptada a la irregular topografía del curso del río y nivelada luego con relleno, que aún hoy pervive y canaliza el curso de agua bajo el templo.


El entorno lo componen edificios,  fundamentalmente de arquitectura popular, rodeados de peñas y rocas. La plaza antaño fue el centro de la villa a los pies del Castillo que la rodea. La iglesia se proyectó presidiendo la nueva plaza y en el lateral derecho se emplazó la fuente de la Cadena, atribuida al círculo del arquitecto Andrés de Vandelvira.


 

Imagen
Imagen
Imagen

Estado previo

El Conjunto presentaba importantes daños y elevado grado de deterioro:

  • Fisuras en el óculo del tímpano del frontal del ábside, hasta la clave del arco de la serliana
  • Fisuras en el relieve de la portada principal
  • Fallo generalizado en la cubierta de la sacristía, desde la estructura a los elementos de acabado e impermeabilización
  • Humedades en pavimentos y paramentos de la sacristía
  • Humedades en la bóveda vaída policromada de la sala izquierda, que han provocado el deterioro de las pinturas
  • La portada hacia la calle de la Hoz presentaba eflorescencias salinas y pérdida del labrado de una de las piezas, así como pérdidas de material por erosión y arenización del material
  • Pérdida de material de juntas de sillares y elementos de los muros
  • Vegetación de porte arraigada en numerosas zonas. Deterioro de pavimentos


 

Imagen
Imagen

Descripción de la intervención

El objetivo del proyecto ha sido la restauración integral de las ruinas conservándolas como tales y dotándolas de instalaciones básicas y dispositivos que mejoren la visita cultural de las mismas y permitan la realización de actividades culturales, vinculadas a las representaciones escénicas.

La directriz del proyecto ha sido la conexión entre patrimonio cultural y desarrollo sostenible, incluyéndose las mejoras de la accesibilidad, mediante colocación de rampa.  Las actuaciones principales han consistido en: dotación de pequeña sala de recepción al visitante, en la capilla de San Cristobalón, disposición de terraza mirador a Cazorla, en la cubierta de la torre y habilitación de la visita dotando de sala de servicios y descanso y pequeña área administrativa  sobre el espacio anterior.

El equipamiento cultural instalado para las actividades previstas ha consistido en graderío, tarima para el plano de escena, estructura para los sistemas y equipos escénicos, Iluminación, sonido, audiovisuales, etc.
 

Imagen
Imagen
Imagen
Imagen
Imagen

Ficha técnica y planimetría

Entidad/es promotora/s
Junta de Andalucía. Consejería de Cultura.
Adjudicatario/s
BAUEN S.A
Dirección y ejecución
Pedro Salmerón Escobar, Arquitecto. Francisco Campos Fernández, Arquitecto Técnico.
Periodo de ejecución
-
Inversión
3.212.217,22€

Planimetría

Índice